矿井瓦斯地质图编制标准
一、矿井瓦斯地质图编图原理和目的
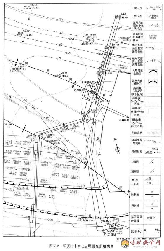
矿井瓦斯地质图是以矿井煤层底板等高线图和采掘工程平面图作为地理底图,在系统收集、整理建矿以来采、掘工程揭露和测试的全部瓦斯资料和地质资料,如采掘工作面每日的瓦斯浓度、风量和瓦斯抽采量,煤与瓦斯突出危险性预测指标及煤与瓦斯突出点资料等,在查清矿井瓦斯地质规律,进行瓦斯涌出量预测、煤与瓦斯突出危险性预测、瓦斯(煤层气)资源量评价和构造煤的发育特征等基础上按照图例绘制而成。矿井瓦斯地质图能高度集中反映煤层采掘揭露和地质勘探等手段测试的瓦斯地质信息,可准确反映矿井瓦斯赋存规律和涌出规律,准确预测瓦斯涌出量、瓦斯含量、煤与瓦斯突出危险性,准确评价瓦斯(煤层气)资源量及开发技术条件。
二、矿井瓦斯地质图编图内容和方法
1 、地理底图
选用1:5000矿井采掘工程平面图和煤层底板等高线图作为地理底图,要求地理底图的选取应能反应最新的瓦斯地质信息。
2、 地质内容和方法
(1)煤层底板等高线:一般是标高差50m一条,在褶皱和断层影响引起煤层倾角变化大的部位,等高线密度增加;
(2)井田地质勘探钻孔、煤层露头、向斜、背斜、断层、煤层厚度、陷落柱分布、煤层顶底板砂泥岩分界线,构造煤的类型、厚度分布等。
上述内容按瓦斯地质图图例绘制。
3 、瓦斯内容和方法
(1)瓦斯涌出量点:掘进工作面绝对瓦斯涌出量点,回采工作面绝对瓦斯涌出量和相对瓦斯涌出量点,每月筛选一个数据,按瓦斯地质图图例填绘和表1、表2统计;
(2)瓦斯涌出量等值线:绝对瓦斯涌出量等值线又分实测线和预测线,按瓦斯地质图图例填绘和表1、表2统计;
(3)瓦斯压力等值线:煤层瓦斯压力等值线分为实测等值线和预测等值线,其中要有0.74MPa等值线,按瓦斯地质图图例填绘和表4统计;
(4)瓦斯涌出量区划:根据矿井瓦斯涌出特征,一般是级差5m3/min,按瓦斯地质图图例填绘不同的面色,表示瓦斯涌出量区划级别;但对大型、特大型矿井,产量高、瓦斯涌出量大的矿井,绝对瓦斯涌出量等量差可适当增加。
(5)瓦斯含量点和瓦斯含量等值线,按瓦斯地质图图例填绘和表3统计;
(6)瓦斯突出危险性预测参数:瓦斯压力P,瓦斯放散初速度ΔP,煤的坚固性系数f值,瓦斯突出危险性综合指标K值,钻屑瓦斯解吸指标Δh2,钻孔最大瓦斯涌出初速度qmax,钻孔最大钻屑量smax等,按瓦斯地质图图例填绘和表4、表5、表6统计;
(7)瓦斯突出危险性区划:根据预测结果,将井田范围划分为突出危险区、突出威胁区和无突出区,按瓦斯地质图图例编绘。
(8)矿井瓦斯资源量:根据瓦斯含量、煤炭储量,分块段计算,按瓦斯地质图图例编绘。
三、矿井瓦斯地质图编图资料收集、整理要求
1、地质资料
(1)矿井地质勘探精查或详查报告、矿井生产修编地质报告(地质说明书);
(2)矿井采掘工程平面图、煤层底板等高线图、构造纲要图、井上下对照图、地层综合柱状图;
(3)采掘工作面地质说明书和相关图件;
(4)煤巷编录的构造煤厚度、测井曲线解释、物理方法探测构造煤厚度;
(5)断层、褶皱、陷落柱和顶底板砂泥岩分界线等;按瓦斯地质图图例填绘和表9统计;
(6)所有的钻孔柱状图和勘探线剖面图,按瓦斯地质图图例标注;
2、瓦斯资料
(1)建矿以来掘进、回采工作面瓦斯日报表、瓦斯抽采台帐、风量报表、产量报表、采掘月进尺等资料。按照表1、表2、表10进行统计,由此计算出各回采、掘进工作面的瓦斯绝对涌出量和相对涌出量;
(2)瓦斯含量资料:地质勘探钻孔取样测定的瓦斯含量和生产阶段取样测定的瓦斯含量,按照表3进行统计;
(3)瓦斯抽采资料:详细收集煤层预抽瓦斯和采掘过程中抽采的瓦斯量、所有的瓦斯抽采设计方案和瓦斯抽采台帐,按表10统计;
(4)瓦斯压力测试数据:按表4进行统计;
(5)煤巷掘进测试的瓦斯突出预测参数,钻屑瓦斯解吸指标Δh2,钻孔最大瓦斯涌出初速度qmax,钻孔最大钻屑量smax,瓦斯放散初速度ΔP,煤的坚固性系数f值,瓦斯突出危险综合指标K值,按照表5、表6进行统计;
(6)煤与瓦斯突出点资料。
统计建矿以来的所有煤与瓦斯突出点资料,并描述其发生过程和突出位置、作业工序等详细资料,按照表7、表8统计。
四、编制矿井瓦斯地质图
(1)比例尺:1:5000
(2)矿井瓦斯地质图的不同符号和颜色表示不同的内容和含义。瓦斯地质图内容的表示方法和绘图要求,依据瓦斯地质图图例填绘。


五、矿井瓦斯地质图编制说明书编写提纲