行人过桥安装制作使用管理标准
1、适用范围
本规范适用于河南煤业化工集团永煤公司所属矿井在用带式输送机(包括运送人员带式输送机及采区上、下山胶带输送机)。
2、起草及会审人员
3、会审时间
4、审核人员
5、实施时间
6、参考标准
《煤矿安全规程》 (2011版)
《机械安全防护装置、固定式和活动式防护装置设计与制造一般要求》 (GB/T8196-2003)
一、采掘工作面过桥安装位置
1、在采煤、掘进工作面皮带机头大架后不大于15m处设置一个过桥。
2、刮板机与胶带机搭接时,在搭接点后不大于15m处设一个过桥,在刮板机头向后不大于15m处设一个过桥,如刮板机长度超过60m时,在刮板机中间另设一过桥。
3、胶带机与刮板机搭接时,在刮板机尾前方不大于15m处设置一个过桥。
4、刮板机与刮板机搭接时(综采工作面运输机除外),在搭接点后不大于5m处设置一个过桥,如刮板机长度超过60m时,在刮板机中间另设置过桥。
5、胶带机与胶带机搭接时,在搭接点缓冲架前方不大于10m处应设置一个过桥。
6、综掘机转载皮带与胶带机搭接时,在胶带机尾缓冲架前方不大于15m处应设置一个过桥。
7、掘进巷道内安设有胶带机或刮板机时,在钻场、泵坑或信号硐室入口处应安设一个过桥。
8、当胶带机长度超过300m时,为确保清煤、检修方便,应每300m设置一个过桥(如中间有钻场或泵坑时,该过桥可就近安装,但要保证过桥之间的距离不能超过300m)。
二、主运输皮带过桥安装位置
1、采煤、掘进工作面胶带与主运胶带搭接时,在搭接点不大于10m应在主运胶带上设置一个过桥。
2、主运皮带搭接位置为方便检查落煤点及溜煤槽状况,在搭接点向机头方向10m位置主运胶带上应设置一个过桥。
3、在主运皮带非行人侧存放物料及配件的地点等人员需跨越处应设置过桥。
4、煤仓下口沿煤流方向向前10m位置,应设置过桥以方便观察落煤点及检查、检修工作。
三、过桥安装要求
1、过桥与皮带机之间采用螺丝或U型卡子的固定牢固,严禁直接放置在皮带机上。
2、所有过桥均要保证不小于500mm的过煤空间,顶部保证有足够的行人空间。
3、过桥要求统一刷天蓝色防锈漆。
四、需从胶带下方行人的胶带下方应安设防护设施,周边使用不小于L40×4mm的角铁作为框架,中间焊接不小于δ3的钢板,长度不小于1.5m,行人高度不低于1.6m,宽度根据胶带机机架的实际情况确定,采用卡子和机架连接。
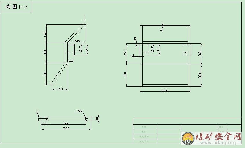
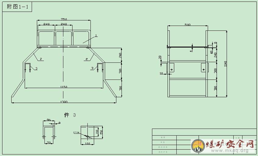
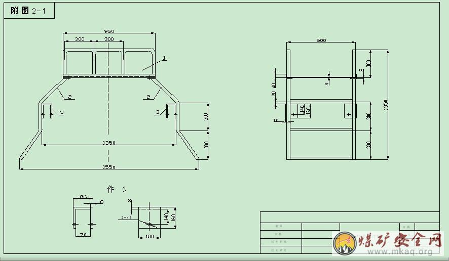
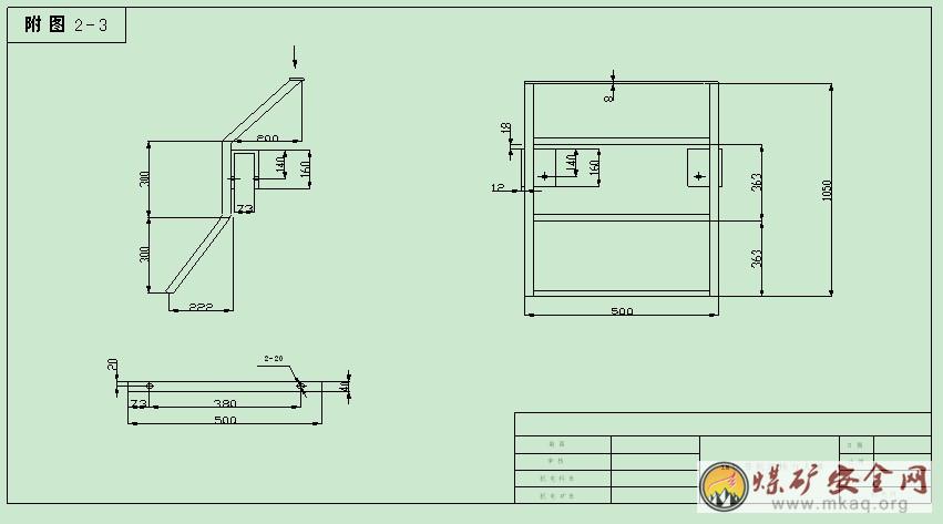
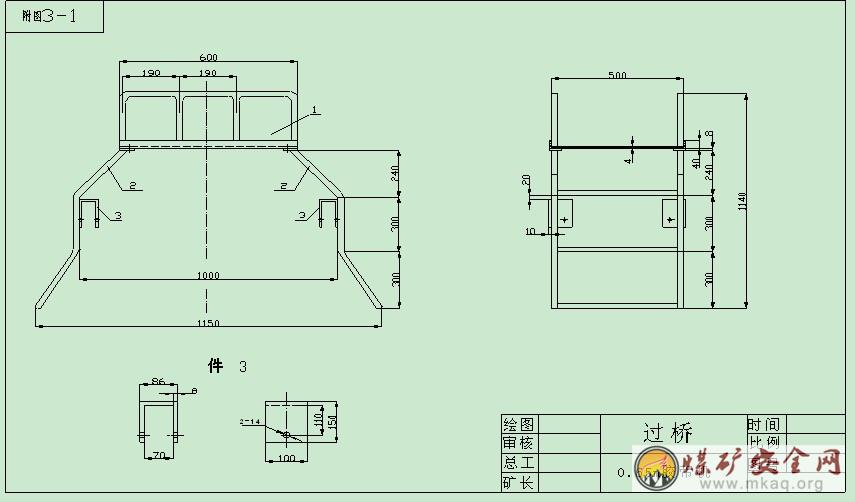
五、制作标准
1、0.8m胶带机过桥制作标准见附图1
2、1m胶带机过桥制作标准见附图2
3、0.65m胶带机过桥标准见附图3








